"Bluebell"
Plan #: 1007A
File Package Help
File Package Help
PDF File – Single Build License
You will receive a complete set of construction drawings in digital PDF format, delivered by email. This package includes a Single Build License, allowing the home to be constructed one time for residential use. The PDF files may be printed as needed for pricing, permitting, and construction.
PDF File – Unlimited Build License
You will receive a complete set of construction drawings in digital PDF
format, delivered by email. This package includes an Unlimited Build License,
allowing the home to be constructed multiple times for residential use with no
additional fees. The PDF files may be printed as needed for pricing, permitting, and construction.
PDF + CAD File – Unlimited Build License
This package includes both the PDF and CAD (DWG) versions of your home plan, delivered by email. You receive the same complete construction drawings provided in the PDF package plus fully editable CAD files used by builders, designers, and engineers.
The Unlimited Build License allows you to build the home as many times as you like for residential use, with no additional fees. PDF files may be printed as needed for pricing, permitting, and construction. CAD files allow professionals to make precise, efficient updates—such as adjusting dimensions, modifying foundations, updating framing details, or incorporating site-specific and code-required changes.
This option is ideal if your builder, engineer, or local building department requires editable files, or if engineering, energy calculations, or structural coordination are needed. It’s also a great choice for homeowners who expect design changes or want maximum flexibility before construction begins.
Choosing PDF + CAD can save time, reduce revision costs, and simplify the permitting process, making it our most flexible and future-ready package.
What is a Right-Reading Reverse plan?
A Right-Reading Reverse is a mirrored version of a house plan. The entire layout is flipped left-to-right, while room sizes, dimensions, and relationships remain the same. For example, a garage that appears on the left side of the original plan would appear on the right side in the reversed version.
Homeowners often choose a Right-Reading Reverse to better match their lot conditions, such as driveway access, street approach, views, or site orientation. This option can help improve curb appeal, optimize sunlight exposure, or take advantage of specific site features without changing the overall design of the home.
A Right-Reading Reverse does not change the square footage, room count, or general flow of the home—only its orientation. It is a simple and effective way to adapt a plan to fit your property.
What does the 2×6 Exterior Walls option include?
The 2×6 Exterior Walls option upgrades the home’s exterior wall framing from standard 2×4 construction to 2×6 construction. This change allows for thicker insulation, which can improve energy efficiency, comfort, and sound reduction.
Many homeowners select 2×6 exterior walls for homes built in colder climates, energy-efficient designs, or jurisdictions with higher insulation requirements. Builders may also prefer 2×6 framing for added structural flexibility and easier coordination with modern mechanical and insulation systems.
This option affects exterior walls only and does not change the interior layout of the home. Local building codes, engineering requirements, and construction methods should always be confirmed with your builder and local building department.
Couldn't load pickup availability
Email Delivery (1-2 Business Days)
Plan Specifications
What’s Included in the House Plan
What’s Included in the House Plan
Exterior Elevations
Front, rear, and side elevation views illustrating the home’s exterior design, proportions, and architectural style.
Foundation Plan
A foundation layout showing the general arrangement of footings, foundation walls, piers, posts, beams, and load-bearing wall locations as applicable to the design. One standard foundation type—slab, crawlspace, basement, or walkout basement—is included based on availability and the option selected at purchase. Additional foundation options may be available as upgrades. To accommodate local soil conditions and jurisdictional requirements, some municipalities may request review or confirmation by a licensed engineer as part of the permitting process.
Detailed Floor Plans
Well-dimensioned floor plans depicting wall layouts, room dimensions, doors, windows, stairways, and other essential architectural features for each level. Plans indicate window and door sizes, key references for cross-sections, and clearly note changes in floor, ceiling, and roof heights, as well as the relationship between levels. Engineered floor or ceiling joist systems are not included in some plans and are commonly provided by local engineers or manufacturers familiar with regional conditions.
Roof Plan
An overview of the roof layout showing slopes, ridges, and overall configuration.
Schematic Electrical Plans
Design-specific schematic electrical layouts indicating general locations of fixtures, switches, and outlets.
For more details on plans sets click the link above.
What’s Not Included
What’s Not Included
Architectural or Engineering Stamps
Professional stamps are not included. In some areas, local building departments may request plan review or confirmation by a licensed architect or engineer as part of the normal permitting process. Since requirements vary by location, we recommend checking with your local building authority for any location-specific needs.
Site Plan
A site-specific plot or site plan is not included.
Structural or Framing Engineering
Structural calculations, framing details, truss engineering, and related stamped documents are not included. These items are typically prepared by local licensed engineers or truss manufacturers to reflect regional codes, materials, and site conditions.
Plumbing Layout
Only general fixture locations are shown. Detailed plumbing layouts and specifications are typically developed by licensed plumbing professionals during construction.
Mechanical / HVAC Drawings
Heating, ventilation, and air conditioning system designs are not included and are normally provided by qualified HVAC contractors or engineers.
Grading Plan
Grading, drainage, and earthwork plans are not included.
Material List
A full material takeoff or bill of materials is not included with the base plan. In some cases, a material list can be added as an upgrade.
Upgrade Guarantee
Upgrade Guarantee
If you purchase a PDF package and later require CAD files, we will apply 100% of your original purchase price toward the CAD upgrade. You will only be charged the price difference at the time of upgrade. Upgrades must be requested by the original purchaser and apply only to the same plan design. Upgrading is easy — submit our Custom Request form or email sales@dalplans.com to get started.
What is a CAD (DWG) File
What is a CAD (DWG) File
A CAD (DWG) file is an editable digital version of the house plan used by designers, builders, and engineers. Unlike PDF plans, DWG files allow professionals to make precise adjustments such as modifying dimensions, updating foundations, adjusting framing details, or incorporating site-specific and code-required changes.
Buyers may choose to add the CAD / DWG file if their builder, engineer, or local building department requires editable files for permitting, customization, or coordination with structural, mechanical, or energy-code consultants. This option can also be helpful for homeowners planning design changes before construction.
Foundation Types
Foundation Types
The foundation supports the structure and transfers loads safely to the ground, playing a key role in stability and long-term performance. Below are some different foundation type descriptions:
Slab – A reinforced concrete foundation poured directly on grade, commonly used on level sites and well-suited for many climates.
Crawl Space – A raised foundation supported by footings and short walls, creating space below the home for access to plumbing, wiring, and mechanical systems.
Basement – A foundation that is partially or fully below ground, providing additional storage or usable living space.
Optional Add-Ons Information
Optional Add-Ons Information
What is a Right-Reading Reverse plan?
A Right-Reading Reverse is a mirrored version of a house plan. The entire layout is flipped left-to-right, while room sizes, dimensions, and relationships remain the same. For example, a garage that appears on the left side of the original plan would appear on the right side in the reversed version.
Homeowners often choose a Right-Reading Reverse to better match their lot conditions, such as driveway access, street approach, views, or site orientation. This option can help improve curb appeal, optimize sunlight exposure, or take advantage of specific site features without changing the overall design of the home.
A Right-Reading Reverse does not change the square footage, room count, or general flow of the home—only its orientation. It is a simple and effective way to adapt a plan to fit your property.
What does the 2×6 Exterior Walls option include?
The 2×6 Exterior Walls option upgrades the home’s exterior wall framing from standard 2×4 construction to 2×6 construction. This change allows for thicker insulation, which can improve energy efficiency, comfort, and sound reduction.
Many homeowners select 2×6 exterior walls for homes built in colder climates, energy-efficient designs, or jurisdictions with higher insulation requirements. Builders may also prefer 2×6 framing for added structural flexibility and easier coordination with modern mechanical and insulation systems.
This option affects exterior walls only and does not change the interior layout of the home. Local building codes, engineering requirements, and construction methods should always be confirmed with your builder and local building department.
Plan Printing Options
Plan Printing Options
Your house plans are delivered as high-resolution PDF files and can be printed from any standard home or office printer for convenient reference. For construction use, the plans are formatted for professional large-format printing, including 24″ × 36″ Arch D sheets, which provide full-size, easy-to-read drawings commonly used on job sites.
If full-size plans are desired, the PDF files can be taken to local or online print shops. Arch D (24″ × 36″) prints are widely available through blueprint or reprographics shops, office supply stores with large-format printers, and online architectural printing services.
To print full-size plans, simply provide the PDF file and request 24″ × 36″ printing at 100% scale with no scaling or “fit to page.” The plans are already set up to architectural sheet standards, so no special formatting or preparation is required.
This flexibility allows homeowners to print plans at home for review while giving builders and contractors the option of professional full-size prints for construction and permitting.
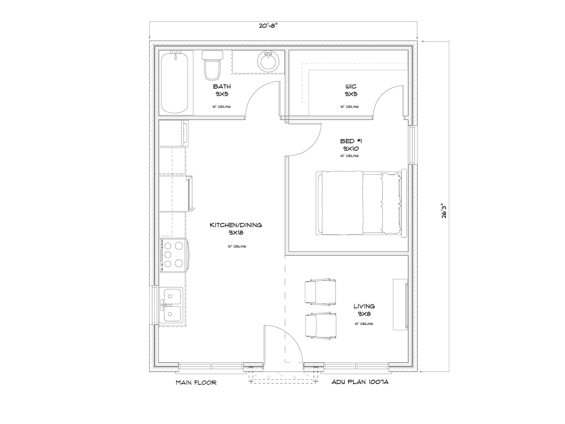
The Bluebell is a thoughtfully designed 500 SF ADU cottage that delivers smart, efficient living in a compact footprint. The open-concept living and kitchen area creates a bright, comfortable space, while a private bedroom, full bathroom, and walk-in closet provide everyday functionality. Designed for flexibility, Bluebell is ideal for backyard ADU use, guest accommodations, rental income, or downsized living. Its simple layout and timeless cottage exterior make it an easy, versatile addition to a wide range of properties. Designed to International Residential Code (IRC) standards, builder-ready. Email Delivery (1-2 Business Days)
Share

Plan Accuracy & What’s Included
Code foundation
All DAL Plans are developed using the International Residential Code (IRC) as the primary design baseline. The IRC forms the foundation of residential building codes across the United States, providing a consistent starting point for layout, dimensions, and construction intent.
Designed for jurisdictional adaptability
Because building requirements vary by location, local amendments, energy codes, climate conditions, and site characteristics may require adjustments. DAL Plans are intentionally designed to accommodate these jurisdiction-specific requirements efficiently, without altering the core design or starting over.
Builder-created, not conceptual
DAL Plans are created by a professional home builder with hands-on experience constructing hundreds of homes. These designs reflect real-world construction practices, practical framing methods, and the realities of pricing, permitting, and building — not presentation-only drawings.
Complete working drawings
Each DAL Plan is delivered as a complete set of residential working drawings intended for construction. Plan sets include fully dimensioned floor plans, exterior elevations, a roof plan, and a foundation plan based on the selected foundation type.
Details builders expect
Floor plans show wall layouts, room dimensions, doors, windows, stairways, ceiling heights, and key section references. Schematic electrical plans are included, indicating general locations of switches, outlets, and fixtures to support accurate pricing and coordination.
Local items handled where they belong
Some jurisdictions require additional documentation such as structural engineering, energy compliance reports, truss design, or soil-related review. These items are typically completed by local professionals to address regional conditions and support permit approval. DAL Plans provide the builder-ready foundation for this process.
Accountability without over-promising
DAL Plans stand behind the accuracy of the drawings provided. If a contractor or local building department identifies a verified technical drafting error, the necessary correction will be provided at no cost.