Builder-Created Plans — Ready for Permit & Build
DAL Plans creates IRC-based, builder-ready house plans for real construction. With 20+ years of hands-on building experience and hundreds of completed homes, we deliver proven stock plans and custom designs tailored to real-world constraints and challenging lots.
Peace-of-Mind Plans
You can trust DAL Plans with confidence: every house plan is fully IRC-compliant and crafted to be builder-ready nationwide. Plans represent a major investment, so we protect your money—if local building codes, jurisdiction-specific amendments, or permitting requirements require adjustments, we provide free revisions to secure smooth approval and compliance. No surprise costs or wasted effort. Backed by decades of construction expertise, our designs minimize on-site changes, save time and money for homeowners and builders, and deliver reliable, hassle-free results wherever you build.
We help solve real-world build challenges, including:
- HOA height restrictions
- Masonry requirements
- Narrow or shallow lots
- Sloping topography lot
- Tight setbacks for house fit
- Irregular lot fits
- HOA Architectural Reviews
- Garage Location Requirement
Stock Plans: Fast Ready
Browse our growing library of ready-to-build stock plans, featuring efficient, code-compliant designs perfect for fast permitting and straight forward construction Nationwide. Easily filter by number of bedrooms, bathrooms, overall width, depth, height, square footage, style, and more advanced options — or simply Reach Out to our team. We’ll personally help match the ideal plan to your specific lot, budget, timeline, and any unique requirements.
Custom & Lot-Specific Design
When a stock plan won’t quite work on your site, we deliver fast and affordable custom, semi-custom, and targeted adjustments that easily handle narrow or shallow lots, HOA height or masonry requirements, sloping or uneven sites, local code quirks, and other build-specific challenges — without starting from scratch or expensive full redesigns, saving you time and money with personalized friendly solutions.
Upgrade Guarantee
If you purchase a plan package and later decide you need customizations, a different package level, or helpful add-ons, as the original purchaser we will apply 100% of your original purchase price toward the plan you purchased—making upgrades simple and cost-effective as your project evolves. Just reach out through our Custom Quote Request . All our plans are IRC-compliant and builder-ready nationwide, so if local codes or site conditions require any adjustments, we provide free revisions to keep your build on track and hassle-free.
As a proud member of the National Association of Home Builders (NAHB), you can trust DAL Plans for proven, professional-quality designs backed by industry-leading standards and expertise.
Popular Plans
-
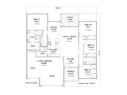
Plan: Vanguard from $1,050
SQFT
1917BEDS
4BATHS
3.0GARAGES
3WIDTH
55'-9"DEPTH
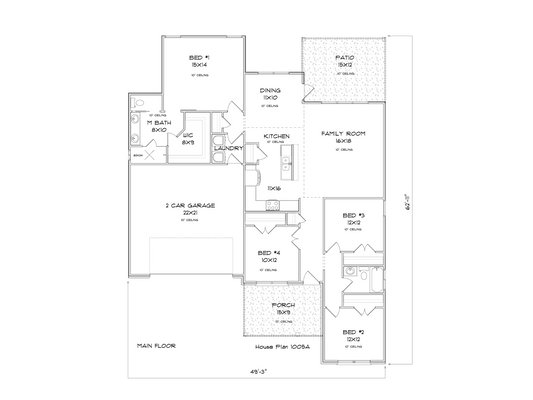
57'-7"Plan: Timberline from $990
SQFT
1705BEDS
4BATHS
2.0GARAGES
2WIDTH
49'-3"DEPTH
62'-11"Plan: Ridgeline from $1,050
SQFT
1917BEDS
4BATHS
3.0GARAGES
3WIDTH
55'-0"DEPTH
57'-5"Plan: Outrigger from $350
BEDS
0BATHS
0.0GARAGES
2WIDTH
21'-6"DEPTH
30'-2"- Choosing a selection results in a full page refresh.
- Opens in a new window.



